接安徽英力电子科技股份有限公司申请,开发区规划建设局于2025年12月1日下午安排2名工作人员到笔记本电脑结构件及相关零组件生产续建12号厂房项目现场,对照规划方案进行了仔细核实,主要内容如下:
建设主体:安徽英力电子科技股份有限公司。
施工单位:安徽博瀚建设有限公司。
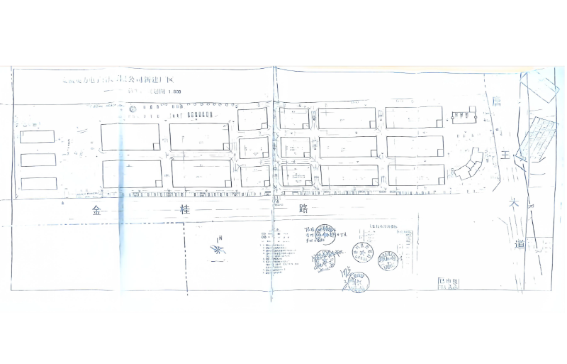
建设位置:舒城县开发区杭埠园区唐王大道与金桂路交叉口西北侧。
规划核实内容:12#厂房。
核实建筑规模:12#厂房:建筑面积4976.11平方米,地上二层,框架结构。
具体内容及现场核实照片详见附件。
该建筑经初步核实,与规划方案、建设工程规划许可证相符,现依照程序实行规划核实批前公示,公示期自2025年12月26日-12月30日。若有单位或个人对该项目规划核实存在异议,可与开发区规划建设局反映,联系电话0564-8665530,联系人:张主任,邮箱:270891451@qq.com。如无异议,将给予核发规划核实合格证。
附:笔记本电脑结构件及相关零组件生产续建12号厂房项目规划总平面图、现场核实照片
规划总平面图:

现场核实照片:


安徽舒城经济开发区
2025年12月26日